Продажа дома, 4-й Богородицкий проезд, деревня Медвенка

10 500 000
Вчера, 10:52
  • Вчера, 10:52
1 / 10
Адрес городской округ Тула, деревня Медвенка, 4-й Богородицкий пр-д
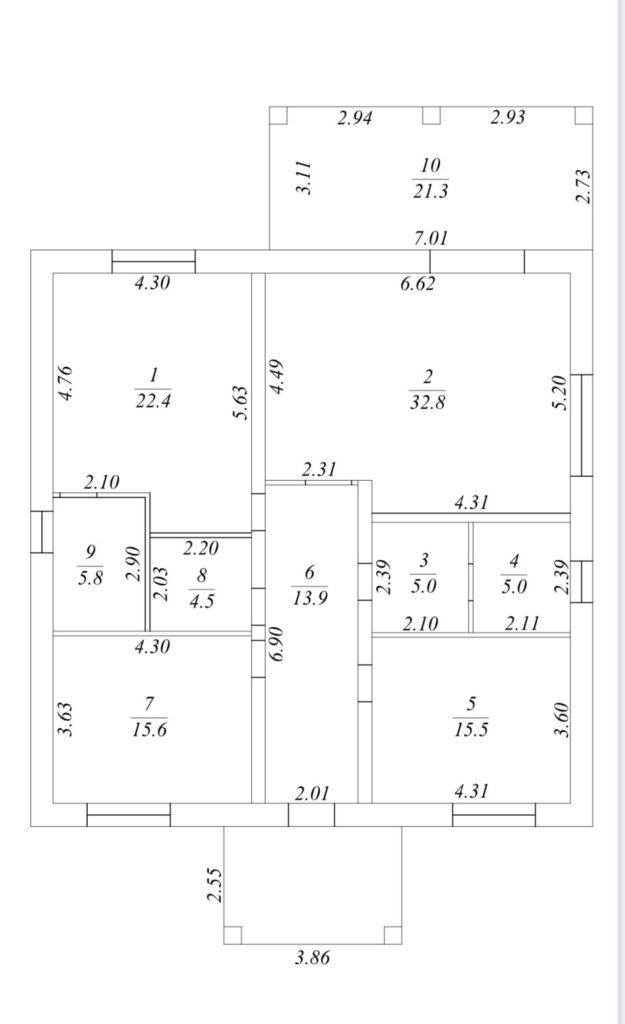
Площадь 135 кв.м.
Площадь земли 9.3 сот.
Строение 1-этажный Дом
Материал стен Газоблок
Крыша Металлочерепица
Фундамент ленточный
Вода Центральное в/с
Канализация Автономная
Отопление Индивидуальное

Продается современный одноэтажный коттедж, площадью 135 кв.м. в деревне Медвенка, по улице 4-й Богородицкий проезд.
Дом построен из газосиликатных блоков, облицовочный  кирпич BRAER, капитальный фундамент (свайно-ростверковый), плиты перекрытия, трехкамерные стеклопакеты, профиль 70 мм, крыша перекрыта металлочерепицей. На этаже большая кухня - гостиная, с выходом на веранду, санузел, бойлерная, гардеробная, три спальные комнаты.                        
Место тихое и уютное, с шикарным видом на лес. В 5 минутах езды вся необходимая для комфортной жизни инфраструктура: супермаркеты, аптеки, стоматологическая клиника, пункты выдачи OZON, Wildberries, Яндекс, отделение почты.      
Коммуникации заведены в дом: центральное водоснабжение, электричество, канализация септик. 

Населённый пункт входит в программу догазификации. 

Кадастровый номер участка: 71: 14: 020701: 7260

Площадь участка - 9,3 сотки!
В настоящее время дом готов, документы на стадии оформления в собственность. 

Подходит под семейную ипотеку и другие программы господдержки, действующие на момент приобретения.

Помощь в оформлении ипотеки.
Гарантия юридической чистоты на всех этапах сделки.
 

Агентство недвижимости «PRO  Недвижимость»                     
г.Тула, ул.Союзная, 1, 2 этаж, офис 9.

Фирсова Наталья Игоревна
nata_firsova2505@inbox.ru
Агентство недвижимости: Перова Елена Викторовна
город Тула, улица Союзная, 1, офис 9
89509058400@mail.ru
Все предложения этого агентства