Продажа дома, 4-й Богородицкий проезд, деревня Медвенка

10 500 000
Сегодня, 11:46
  • Сегодня, 11:46
1 / 12
Адрес городской округ Тула, деревня Медвенка, 4-й Богородицкий пр-д
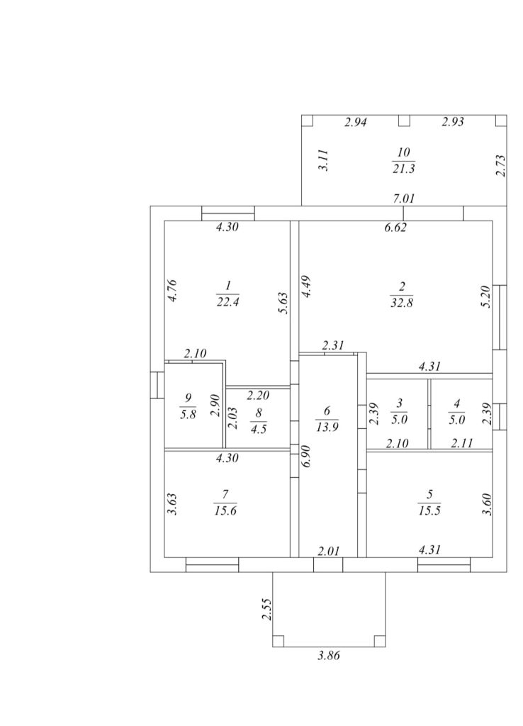
Площадь 135 кв.м.
Площадь земли 9.3 сот.
Строение 1-этажный Дом
Материал стен Газоблок
Крыша Металлочерепица
Фундамент свайный
Вода скважина
Канализация Автономная
Отопление Индивидуальное

Продается современный 1 этажный коттедж, площадью 135 кв.м. в деревне Медвенка.
В доме 3 комнаты (2 по 15 кв. м, и мастер спальня площадью 22 кв.м. с собственным санузлом), просторная кухня-гостиная площадью 32 кв.м,   санузел, бойлерная. Из кухни   выход на террасу с шикарным видом на поле и лес!   Коттедж построен из газосиликатных блоков, облицован кирпичом BRAER,   капитальный фундамент, трехкамерные стеклопакеты, крыша перекрыта металлочерепицей. Коммуникации заведены в дом: водоснабжение (скважина на поселок), электричество, канализация септик. Газ в дом не заведен (населенный пункт подходит под программу догазификации!) Земельный участок 9 соток.
  На данный момент поданы документы для постановки дома на учет!
  Возможно приобретение по семейной ипотеке (6%).Помощь в оформлении ипотеки.
Гарантия юридической чистоты на всех этапах сделки.
АН «PRO Недвижимость», ул. Союзная, 1, офис 9.

Маркина Наталья Сергеевна
natali.markina.87@mail.ru
Агентство недвижимости: Перова Елена Викторовна
город Тула, улица Союзная, 1, офис 9
89509058400@mail.ru
Все предложения этого агентства